The Pioneer Plan

1,200 Square Feet • Cost-Efficient • Thoughtfully Built

The Pioneer is a 1,200 square foot, single-level home designed to deliver a well-built, modern home at an affordable price—without cutting corners on materials or construction quality.

This home was designed to be cost-efficient. We did not lower the price by using inferior materials or low-quality finishes. Instead, The Pioneer achieves its price point through smart design, efficient layouts, modern building techniques, and labor-saving construction methods that reduce waste and unnecessary complexity.

The result is a durable, comfortable home built with solid materials and practical, mid-level finishes that make sense for everyday living.

What’s Included in the Pioneer

The Pioneer is a turnkey home build (excluding land, well, septic, and appliances) and includes:

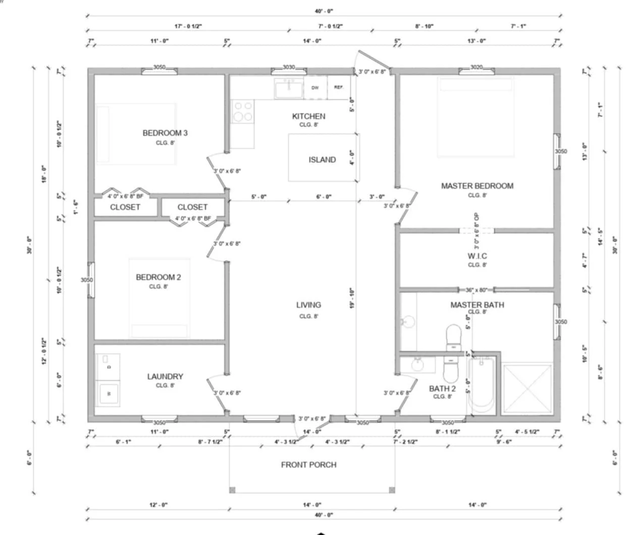
  • 1,200 sq ft single-level layout

  • 3 bedrooms

  • 2 full bathrooms

  • Open-concept kitchen, dining, and living area

  • Dedicated laundry space

  • Covered front porch

  • Solid wood cabinets in the kitchen and bathrooms

  • Durable, mid-level interior finishes

  • Energy-efficient windows and exterior doors

  • Quality metal exterior siding and roofing

  • Complete interior and exterior construction

This home is designed for functionality, longevity, and ease of maintenance.

Designed for Efficiency

The Pioneer was engineered to reduce unnecessary labor and material waste while maintaining build quality. We achieved this by:

  • Designing a straightforward, efficient floor plan

  • Minimizing structural complexity

  • Using modern framing and construction techniques

  • Eliminating wasted square footage

These efficiencies reduce labor costs—not material quality—allowing us to deliver a strong, affordable home.

Build Cost

$195,000

This price represents the cost for Montana Home Builders to construct the home itself.

Not included in this price:

  • Land

  • Well

  • Septic system

  • Appliances

Everything else related to the home construction is included, making this a turnkey build once those items are addressed.

Common Upgrades & Add-Ons

While the Pioneer is designed as a cost-effective base home, many clients choose to personalize it with select upgrades.

Popular upgrades include:

  • Standing-seam metal roofing

  • Exterior siding or accent upgrades

  • Cabinet and countertop upgrades

  • Interior flooring upgrades

  • Lighting and fixture upgrades

  • Kitchen island adjustments or enhancements

  • Covered porch upgrades or extensions

We focus on smart upgrades that add value, not unnecessary cost.

Frequently Asked Questions

What is the cost of land?

Land costs vary depending on location and size. In and around the Billings area, lots can be found for as low as $30,000, with most average lots selling in the $60,000 to $80,000 range.

What is the cost of a septic system?

Septic costs depend on the soil type, system design, and permitting requirements for your specific lot.

In the Billings area, septic systems typically range from $15,000 to $40,000, with most projects coming in around $25,000.

Do I need to find my own well and septic contractors?

No. We can handle that for you.

Land, well, and septic costs are not included in the base home price because these costs vary for every property. Once you have land secured, we can:

  • Perform soil testing

  • Obtain estimates for well and septic

  • Lock in pricing

  • Include those costs in your overall project

This allows for accurate pricing while keeping the base home cost transparent.

Why aren’t appliances included?

Appliances are not included because every homeowner has different preferences and needs. We’ve found it’s simpler for clients to select and purchase appliances separately rather than being locked into a standard package.

How long does it take to build?

Build timelines depend on location, permitting, and weather. Once site work and approvals are complete, the average construction time for the Pioneer is approximately three months.

Next Steps

If you’re looking for an affordable, well-built home that prioritizes smart design and honest pricing, the Pioneer is a strong place to start.

Contact us to discuss your lot, timeline, and build options.

Next
Next

The Frontier Plan